العرض الساخن: 126 غرفة جديدة فاخرة 4 * فندق للبيع في قطر

1501 0 آخر تحديث: 2026-01-29 13:18:05 تاريخ الإعلان: 2021-05-23 أبلغ عن مرجع ويب: 16345

السد , الدوحة

200,000,000 ريال قطري

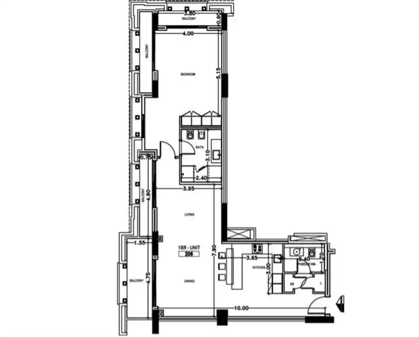
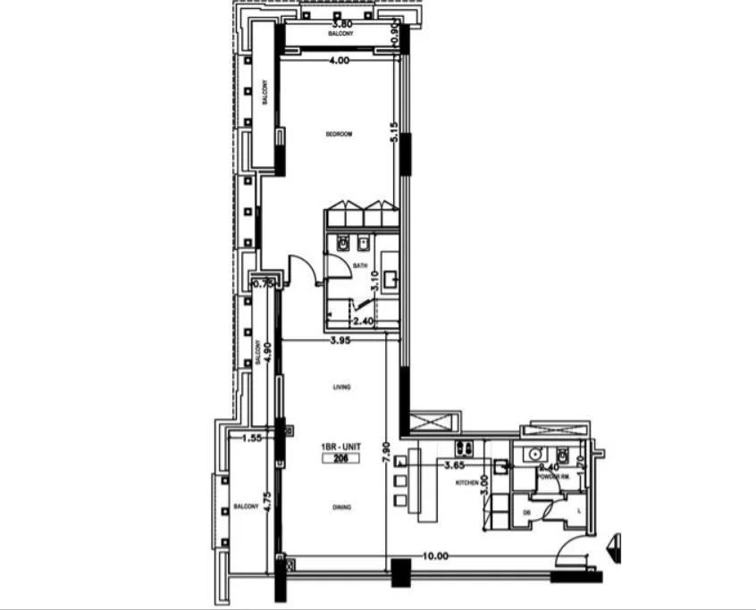
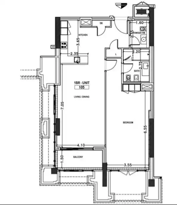
1 غرفة 1 الحمامات مفروش 100 متر / 1077 قدم للبيع
سكني
شقق فندقية
عقار جاهز
100 متر / 1077 قدم
2,000,000 ريال قطري
185,701 ريال قطري
923

للبيع

المكان: الدوحة
سعر البيع: ريال قطري. 200 مليون

سمات:

* 126 غرفة
* مفروشة بالكامل
* حمام السباحة
* نادي رياضي
* منطقة مفتوحة
* بنتهاوس
* جاكوزي ، ساونا ، سبا ، غرف مساج
* مطعم ومقهى

في قطر

معلومات المستخدم

أعجبني:

تعليقات

إعلانات مماثلة